新闻动态

News information

DSA作品 | 室内设计所幼儿园设计项目总汇

2021-09-09

新闻动态DSA作品 | 室内设计所幼儿园设计项目总汇

人生需要很多把钥匙,幼儿园是开启人生的第一把钥匙。


我们在极力创造一个温暖简约,诗意且具有艺术的世界,想要给孩子们一个奇异的世界,让他们可以在这里体验,成长,感受四季,同时也让家长与员工无需时刻牵挂安全的空间。


图片


在幼儿园项目上设计师以原木色和多彩碰撞为主要基调,展现出设计师和教育者的可持续性环保理念,同时带给小孩一种回家的温暖感觉。在设计的细节上,利用建筑原结构的架构和外部的光线优势,将光线自然的引进室内,柔和的阳光洒在小朋友身上,是一种家的安心触感,一种温暖的满足感
1
群贤府幼儿院

工程名称:2020-2023年南太湖幼儿园教育项目(二期)--- 群贤府幼儿园

建设单位:湖州南太湖新区社会发展服务中心

建设地点:湖州市仁皇山RHS-03-01-01E地块项目-幼儿园

主要设计内容:本工程为9班大型幼儿园,地上3层;含幼儿园生活用房、服务管理用房、供应用房等,建筑层数地上三层,建筑高度12.00米。一三层层高3.9米;建筑总面积3292.48㎡。

图片

图片

图片

设计师将城堡造入室内,创建出一个儿童与教师共同探索、玩耍与生活、学习的多功能空间。对原有的三层建筑进行了动线梳理,创建了具有多种关联的两个区域。过道,楼梯间增加多种娱乐设备与活动区域,给小孩子提供更有趣的探索空间,给老师提供更多的互动教学。

▼大厅1 · Hall

图片

大厅2 · Hall

图片

大厅3 · Hall

图片

过道 · Aisle

图片

过道2 · Aisle

图片活动教室 · The active classroom

教室 · Classroom

图片

卫生间 · Bathroom

图片卫生间2 · Bathroom

图片


2
祥符幼儿院

工程名称:杭政储出(2020)32号地块

建设单位:杭州远宸建祥置业有限公司

建设地点:浙江省杭州市祥符单元

主要设计内容:本工程总建筑面积8200m²,共四层室内装修面积为8200m²。

图片

全园以浅木色为整体基调,大面积的白色艺术漆创造出纯净公平宁静的空间环境。教室采用更接近自然的木纹,创造像家一样安全、温馨的氛围,鼓励孩子们激发自我的潜能。幼儿园的设计过程在确保自然和安全的基础上,把童年最珍贵的自由还给孩子。设计与爱,让阳光照进童年。

▼一层大厅 · Mezzanine lobby

▼一层体育休息室 · Staff room

▼二层读书广场 · Reading Plaza on the second floor

▼二层过道 · Second loor aisle

图片

▼二层过道休息区 · Aisle rest area on the second floor

图片

▼二层生活操作室 · Living operation room on the second floor

图片

▼二层图书馆 · Second floor library

图片

▼二层音体室 · Sound room on the second floor

图片

▼教室1 · Classroom

图片

▼教室2 · Classroom

▼三层过道 · Third floor aisle

▼三层过道休息区 · Aisle rest area on the third floor

▼三层美术创意室 · Art creative room on the third floor

▼三层展示区 · Third floor display area


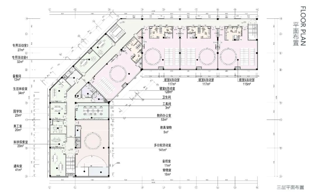
3
枫丹壹号幼儿院
工程名称:2020-2023年南太湖幼儿园教育项目(二期)---枫丹壹号幼儿园
建设单位:湖州南太湖新区社会发展服务中心
建设地点:湖州市吴兴区
主要设计内容:本工程为12班大型幼儿园,地上3层;含幼儿园生活用房、服务管理用房、供应用房等,建筑高度:9.2米;建筑总面积4200.73及户外幼儿园警卫室建筑总面积10.23㎡。

图片

图片

图片

孩子在学习中领悟知识,体悟情感。幼儿园空间设计应强调高度的灵活性和互动性,摆脱交流屏障,促进孩子交流。所有墙体均采用圆弧倒角设计,以提供柔和的视觉体验并保证孩子们在运动过程中的安全

▼大厅 · Hall

图片

▼过道 · Aisle

图片

▼活动区 · Activity area

▼教室1 · Classroom

▼教室2 · Classroom

▼音体室 · The music room


4
大江东幼儿院
工程名称:杭钱塘储出(2019)10号地块项目
建设地点浙江省杭州市钱塘新区大江东义蓬街道
建筑规模规划班级数12班,学生总人数:360本次装饰工程设计范围为地上部分1~3层所有室内空间,装修设计总面积约为:4578.78平方米。

图片

幼儿在成长过程中会需要接触不同色彩、质地的材料来满足敏感期时对于事物的好奇。这使得空间中的所有元素都能成为孩子成长过程中的学习“教具”。每层色彩主题的教室,教室内部的色彩从下至上呈现出由深到浅的渐变效果,能有效帮助孩子提升对于色彩的敏感性

▼大厅 · Hall

图片

▼过道 · Aisle

图片

其他新闻

联系方式

0571-85228112

通讯地址

浙江省杭州市西湖区云起中心2号楼6楼

2021浙江东设建筑设计有限公司  浙ICP备2021016017号-1   设计维护 : 帷拓科技